Forlì – Appartamento di nuova costruzione

€ 315.000
Forlì Via Marchetti, ,
Preferito

Panoramica

  • Aggiunto il:
  • Novembre 13, 2025
  • 3 Stanze
  • 2 Camere da letto
  • 2 Bagni
  • 97 m2

Descrizione

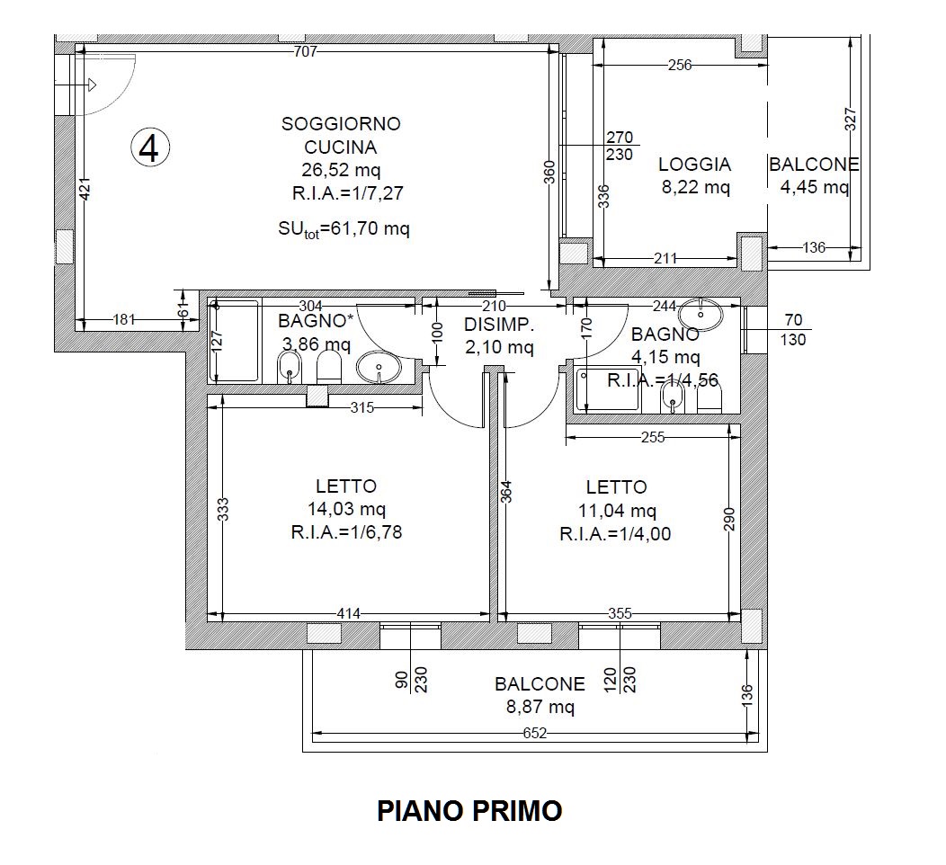
Forlì, Via Marchetti, in zona comoda e strategica per la vicinanza ai principali servizi del paese, proponiamo in vendita appartamento di nuova costruzione al piano primo con due camere servito di ascensore.
L’appartamento si sviluppa in elegante e moderna palazzina, studiata e realizzata con gusto, di sole dieci unità abitative.

L’intervento è creato sulla base di quelle che sono le ultime disposizioni in materia di risparmio energetico andando a garantire la Classe A di ultima generazione e l’addio alla bolletta del gas. L’abitazione in questione si compone di: ingresso, ampia e luminosa zona living di circa 26 mq con accesso alla loggia e al balcone. Dalla zona giorno si accede al disimpegno della zona notte che ricomprende 2 camere da letto con balcone e 2 bagni. Garage al piano terra e posto auto di proprietà.

La palazzina sarà dotata di Impianto di riscaldamento a pavimento con pompa di calore, impianto fotovoltaico, infissi in PVC monoblocco con avvolgibili e zanzariere.

DISTANZA DAI PRINCIPALI SERVIZI:

– Scuole pubbliche circa 400M
– Farmacia circa 500 M
– Centro sportivo circa 900 M
– Centro Commerciale circa 2,5 KM
– Casello Autostrada circa 3,5 KM

ID Immobile: 42305
Prezzo: € 315.000
M² commerciali: 97 m2
Stanze: 3
Camere da letto: 2
Bagni : 2
Servizi: Loggia, balcone, garage, posto auto, ascensore
Balcone (mq): 12
Terrazzo (mq): 8
RIF. Immobile: C4F
Classe Energetica: A+
Energy class A+
A+
A
B
C
D
E
F
G
H
Piano primo
Piano primo

Agenzia Immobili Cappelli Forlimpopoli

I commerciali risponderanno dalle 9 alle 19:30

Contattami

    Annunci simili

    Bertinoro casale bifamiliare con servizi e a...

    € 400.000
    Bertinoro, zona Fratta Terme proponiamo in vendita casale di ampie dimensioni da ristruttu ...
    6 4 680 m2dettagli
    Coming Soon

    Forlì appartamento 3 camere Nuova costruzion...

    € 405.000
    Forlì, in zona comoda e strategica per la vicinanza ai principali servizi della città, pro ...
    3 2 161 m2dettagli

    FO_12 – FORLI’ – Ufficio P...

    € 306.000
    Nel cuore del centro storico di Forlì, proprio fronte Tribunale, sta per partire un presti ...
    1 108 m2dettagli

    Forlì Villa Rovere colonica con terreno

    € 270.000
    Forlì Villa Rovere colonica con terreno e annessi servizi in splendida posizione, immersa ...
    3 2 528 m2dettagli

    Compara Immobili

    Agenzia Immobili Cappelli Forlimpopoli