Panoramica
- Aggiunto il:
- Aprile 10, 2026
- 4 Stanze
- 3 Camere da letto
- 2 Bagni
- 124 m2
Descrizione
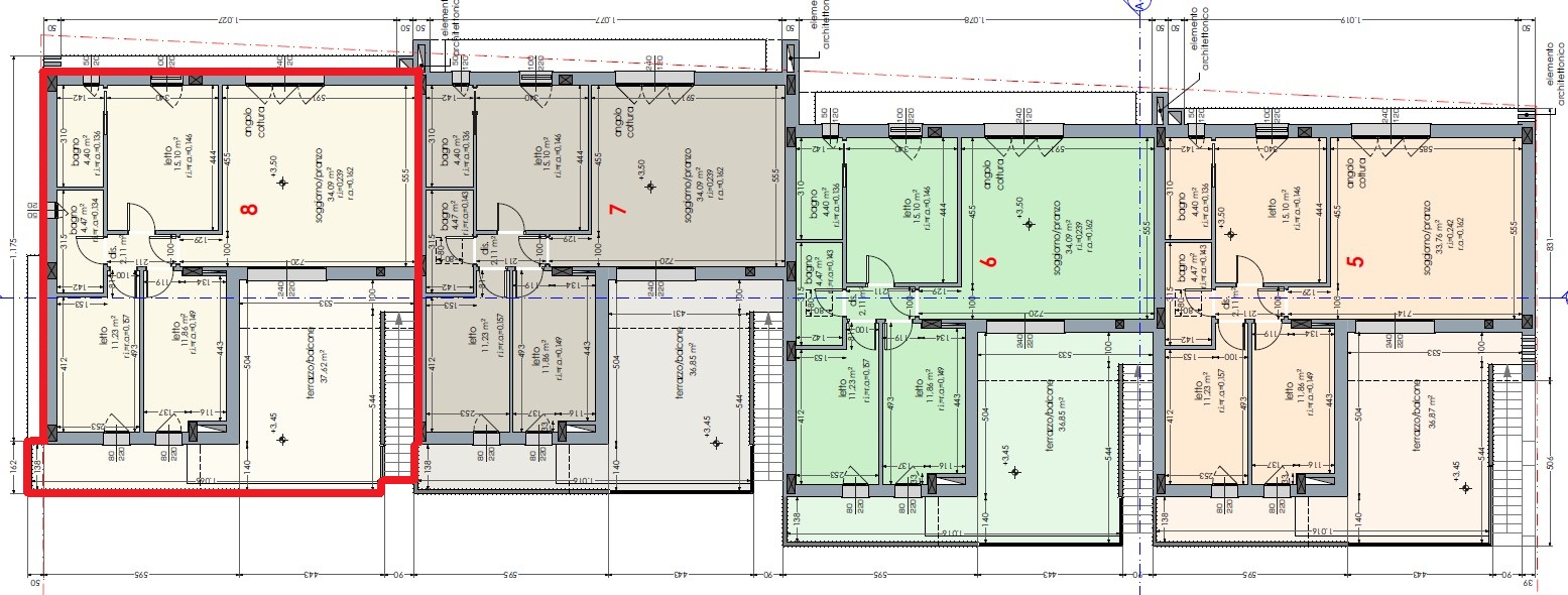
A Forlimpopoli, in zona residenziale comoda a tutti i servizi del centro della cittadina artusiana, proponiamo appartamento con ingresso indipendente posto al primo piano all’interno di un nuovo intervento composto da sole 8 unità abitative, tutte indipendenti e dotate di area esterna privata.
Il progetto, evoluzione di un cantiere precedente completamente venduto, prevede abitazioni di nuova generazione, con spazi ancora più ampi e funzionali, realizzate secondo le più recenti normative per il risparmio energetico con l’obiettivo della Classe A4.
L’accesso avviene attraverso corte privata con ingresso sia pedonale che carrabile, collegata direttamente al garage. Tramite scala esclusiva si raggiunge il piano primo dove si sviluppa l’abitazione, caratterizzata da una grande terrazza abitabile di circa 40mq ideale per pranzi e cene all’aperto.
La zona giorno, di circa 34 mq, è valorizzata da ampie vetrate che garantiscono elevata luminosità durante tutto l’arco della giornata. Il disimpegno conduce alla zona notte composta da tre camere da letto (una matrimoniale e due doppie), due bagni finestrati e accesso diretto al terrazzo dalle camere.
L’immobile sarà realizzato in edilizia tradizionale con rivestimento a cappotto, garantendo elevati standard qualitativi e comfort abitativo. Tra le principali dotazioni troviamo riscaldamento a pavimento, impianto fotovoltaico da 3 kW per unità, ventilazione meccanica controllata (VMC) per il ricambio continuo dell’aria, predisposizione per aria condizionata (zona living e camere), videocitofono e predisposizione per impianto di allarme perimetrale.
Il garage sarà dotato di porta carrabile predisposta per apertura automatizzata.
Soluzione ideale per chi è alla ricerca di un appartamento Forlimpopoli di nuova costruzione, indipendente, efficiente e progettato per garantire qualità della vita e comfort nel tempo.




















