Panoramica
- Aggiunto il:
- Aprile 10, 2026
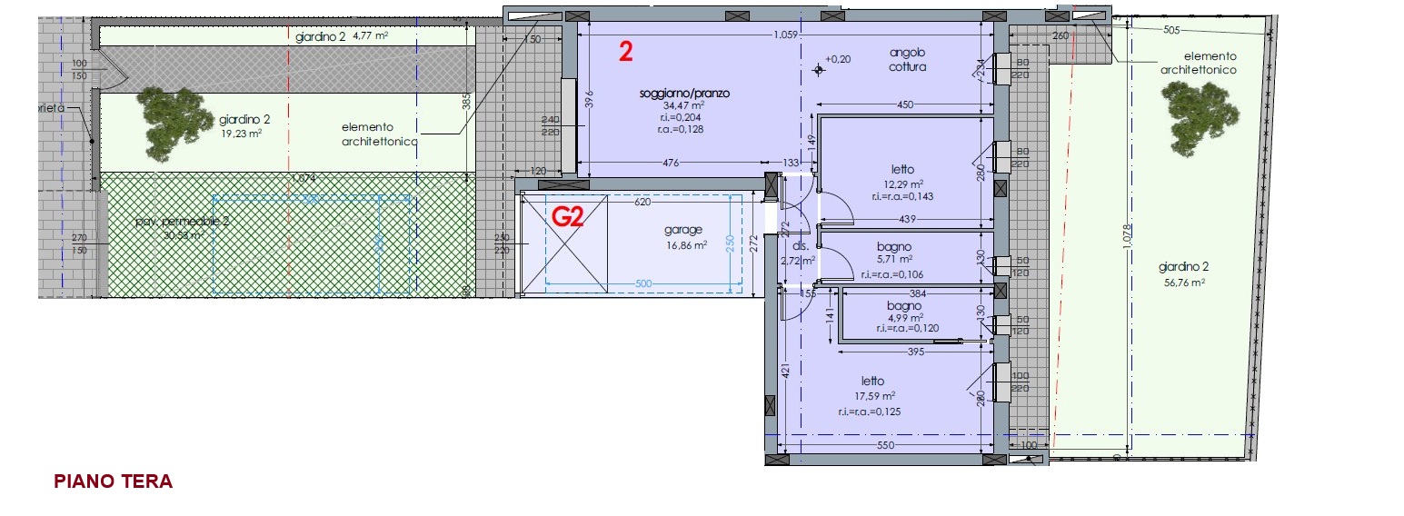
- 3 Stanze
- 2 Camere da letto
- 2 Bagni
- 124 m2
Descrizione
A Forlimpopoli, in zona residenziale comoda a tutti i servizi del centro della cittadina artusiana, proponiamo appartamento al piano terra con ingresso indipendente inserito in un nuovo intervento composto da sole 8 unità abitative, tutte dotate di area esterna privata.
Il progetto, sviluppato sulla base di un precedente intervento completamente venduto, prevede abitazioni di nuova generazione realizzate secondo le più recenti normative per il risparmio energetico, con l’obiettivo della Classe A4.
L’unità si distingue per l’ampia area esterna privata, in gran parte a giardino, per una superficie complessiva di circa 125 mq, distribuita tra fronte e retro. Spazi ideali per vivere l’esterno in modo funzionale, tra zone verdi e superfici pavimentate.
L’ingresso conduce alla zona living di circa 35 mq, caratterizzata da ampie aperture verso l’esterno che garantiscono luminosità e continuità tra interno ed area scoperta.
La zona notte è composta da due camere da letto, di cui una matrimoniale e una doppia, entrambe con accesso diretto all’esterno, oltre a due bagni finestrati. Presente inoltre il collegamento interno diretto con il garage.
L’immobile sarà realizzato in edilizia tradizionale con rivestimento a cappotto, garantendo elevati standard qualitativi e comfort abitativo. Tra le principali dotazioni troviamo riscaldamento a pavimento, impianto fotovoltaico da 3 kW per unità, ventilazione meccanica controllata (VMC) per il ricambio continuo dell’aria, predisposizione per aria condizionata (zona living e camere), videocitofono e predisposizione per impianto di allarme perimetrale.
Il garage sarà dotato di porta carrabile predisposta per apertura automatizzata.
Soluzione ideale per chi è alla ricerca di un appartamento Forlimpopoli con ampia area esterna privata, indipendente, ad alta efficienza energetica e progettato per garantire comfort abitativo e qualità nel tempo.


















