Panoramica
- Aggiunto il:
- Marzo 26, 2026
- 1 Bagni
- 70 m2
Descrizione
A Forlimpopoli, in zona strategica e particolarmente richiesta, nelle immediate vicinanze del Conad e a pochi passi dal centro, proponiamo in vendita negozio inserito in contesto facilmente accessibile e con ampia disponibilità di parcheggi pubblici.
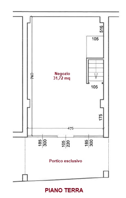
L’immobile si presenta in buone condizioni manutentive e si sviluppa al piano terra con ingresso e locale commerciale di oltre 30 mq, dotato di ampia vetrina che garantisce elevata visibilità e valorizza qualsiasi attività.
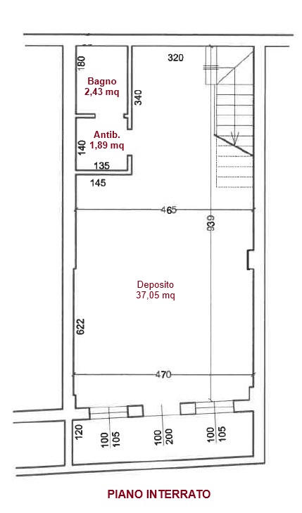
Al piano interrato è presente un comodo deposito di oltre 37 mq, completo di bagno e antibagno, ideale come magazzino o spazio di servizio.
Completa la proprietà il portico esterno privato, elemento distintivo che aumenta la fruibilità dell’immobile e il potenziale commerciale. La posizione, caratterizzata da passaggio costante e presenza di attività nelle immediate vicinanze, rende questo negozio a Forlimpopoli una soluzione interessante sia per attività dirette sia per investimento, in un contesto dinamico e ben collegato anche alla città di Forlì.
Alcuni immobili selezionati vengono condivisi in anteprima fino a 30 giorni prima della pubblicazione sui principali portali immobiliari; seguendo i nostri canali è possibile accedere a queste opportunità in anticipo e valutare le soluzioni migliori prima della concorrenza. Segui @immobili_cappelli_forlimpopoli su Instagram per rimanere aggiornato.














