Panoramica
- Aggiunto il:
- Aprile 17, 2026
- 4 Stanze
- 2 Camere da letto
- 2 Bagni
- 134 m2
Descrizione
A Forlì, con consegna prevista per l’autunno 2026, in contesto di campagna tranquillo e riservato con affaccio sul verde del Parco Don Tommaso Gatti, proponiamo appartamento di nuova costruzione con ingresso indipendente, sviluppato su due livelli, all’interno di un intervento esclusivo composto da sole 4 unità abitative.
La posizione rappresenta un perfetto equilibrio tra privacy e comodità: l’immobile si trova infatti a circa 3 km dal centro di Forlimpopoli e a circa 8 km dal centro di Forlì, permettendo di raggiungere facilmente tutti i principali servizi pur rimanendo immersi nel verde.
L’accesso avviene direttamente al piano terra, dove si sviluppa l’abitazione principale, circondata da un ampio giardino privato e da una spaziosa area pavimentata, ideale per vivere appieno gli spazi esterni in totale indipendenza.
La zona giorno è composta da soggiorno con cucina a vista, ambiente funzionale e ben distribuito, con affaccio diretto sull’esterno.
La zona notte comprende due camere da letto, una matrimoniale e una singola, oltre a bagno finestrato e disimpegno.
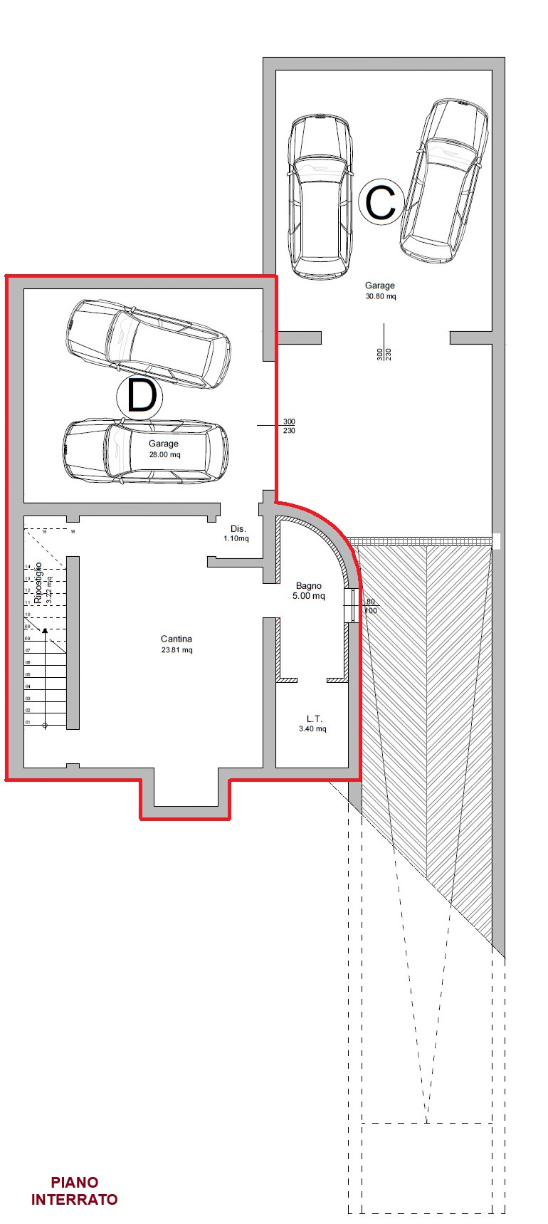
Dal soggiorno si accede direttamente al piano interrato, dove si sviluppa un comodo spazio ideale come zona locale multifunzione, oltre ad un secondo bagno/lavanderia.
Completano la proprietà un garage doppio collegato internamente, che garantisce praticità e comfort nella gestione quotidiana.
L’immobile è realizzato in Classe A4, con elevati standard costruttivi e impiantistici: riscaldamento a pavimento con pompa di calore, impianto fotovoltaico dedicato da circa 3,44 kW, ventilazione meccanica controllata (VMC) puntuale, climatizzazione già installata e serramenti ad alte prestazioni.
Questa soluzione rappresenta un’opportunità ideale per chi cerca un appartamento a Forlì di nuova costruzione, indipendente, con giardino privato, spazi accessori vivibili e alta efficienza energetica, perfetto per chi desidera comfort, privacy e qualità abitativa nel tempo.






