Appartamento Forlì nuova costruzione con ingresso indipendente, terrazzo e garage doppio

€ 335.000
Via Aldo Baggini Forlì, ,
Preferito

Panoramica

  • Aggiunto il:
  • Aprile 17, 2026
  • 4 Stanze
  • 2 Camere da letto
  • 2 Bagni
  • 133 m2

Descrizione

A Forlì, con consegna prevista per l’autunno 2026, in contesto tranquillo e riservato, con affaccio sul verde del Parco Don Tommaso Gatti, proponiamo appartamento con ingresso indipendente sviluppato su 2 livelli, all’interno di un nuovo intervento composto da sole 4 unità abitative.

La posizione rappresenta un perfetto equilibrio tra privacy e comodità: l’immobile si trova infatti a circa 3 km dal centro di Forlimpopoli e a circa 8 km dal centro di Forlì, consentendo di raggiungere facilmente tutti i principali servizi pur rimanendo immersi nel verde.

L’accesso avviene tramite corte privata al piano terra, caratterizzata da area verde e spazio pavimentato, che garantisce indipendenza e vivibilità degli spazi esterni.

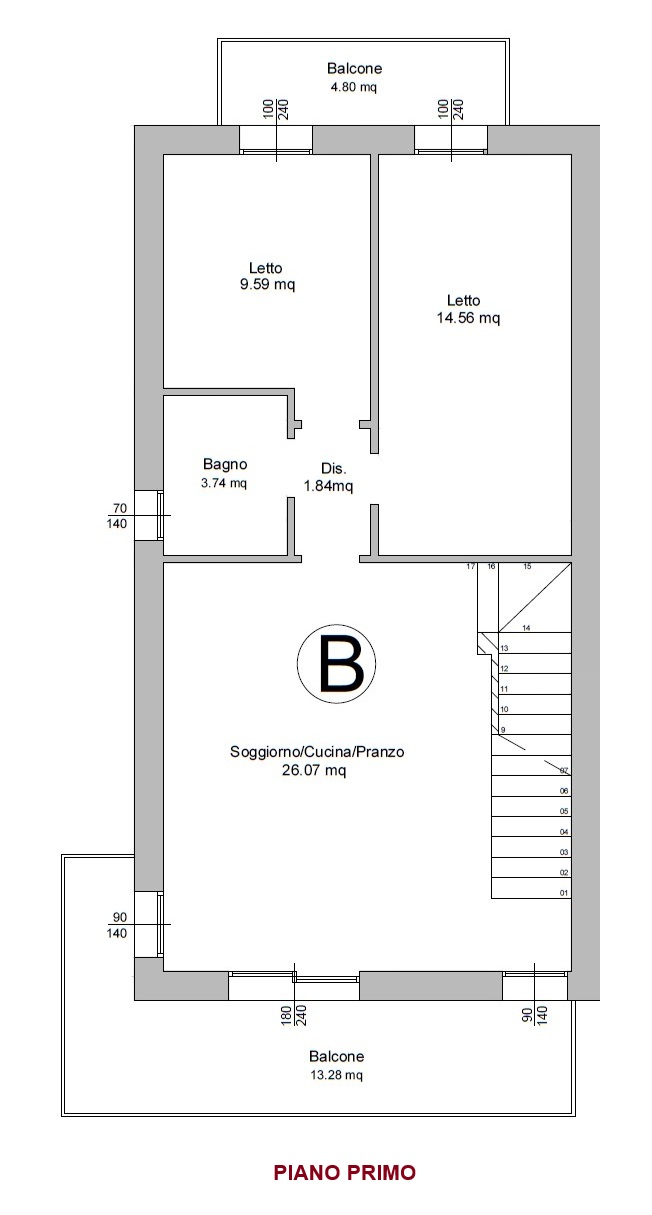
Attraverso scala esclusiva si raggiunge il piano primo, dove si sviluppa la zona abitativa principale composta da una zona giorno open-space, luminosa e funzionale, con accesso diretto al balcone.

La zona notte è composta da due camere da letto, una matrimoniale e una singola, entrambe servite da balcone, oltre a bagno finestrato e disimpegno.

Al piano superiore è presente un ambiente mansardato, ideale come spazio jolly (zona relax o stanza hobby), servito da un secondo bagno e collegato a un ampio terrazzo di oltre 24 mq, perfetto per momenti all’aperto in totale riservatezza.

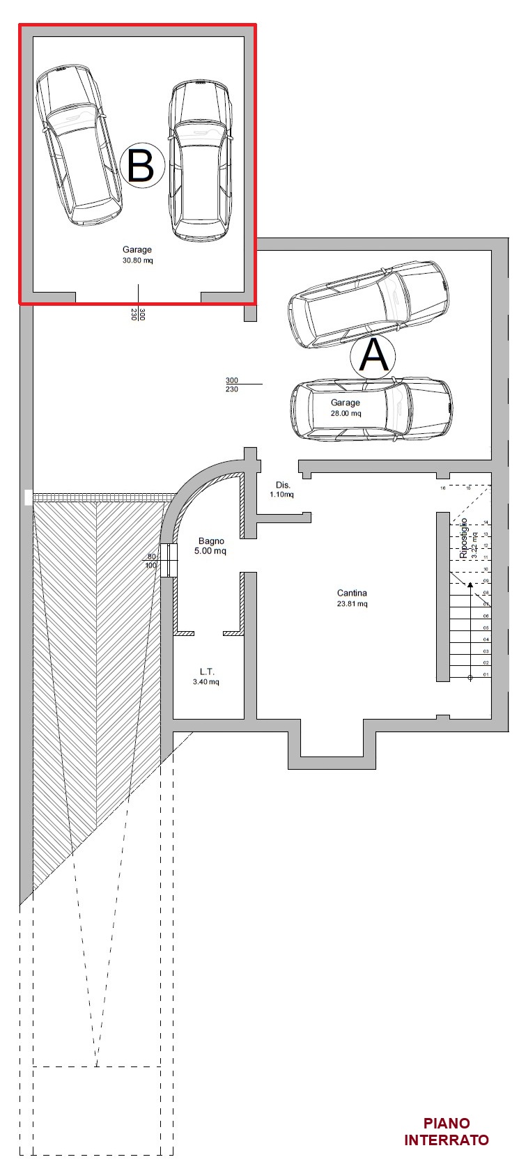
Completa la proprietà un comodo garage “doppio” al piano interrato.

L’immobile è realizzato in Classe A4, con elevati standard costruttivi e impiantistici: riscaldamento a pavimento con pompa di calore, impianto fotovoltaico dedicato da circa 3,44 KW, ventilazione meccanica controllata (VMC) puntuale, climatizzazione (condizionatori compresi) e serramenti ad alte prestazioni, pensati per garantire massimo comfort abitativo ed efficienza energetica.

Soluzione ideale per chi è alla ricerca di un appartamento a Forlì di nuova costruzione, indipendente, immerso nel verde ma strategicamente collegato ai principali centri, progettato per garantire comfort abitativo e qualità nel tempo.

ID Immobile: 43887
Prezzo: € 335.000
M² commerciali: 133 m2
Stanze: 4
Camere da letto: 2
Bagni : 2
Servizi: Terrazzo, balcone, garage doppio, locale tecnico, sottotetto, corte/giardino
Balcone (mq): 18
Giardino (mq): 15
Terrazzo (mq): 24
RIF. Immobile: B1_B
Classe Energetica: A+
Energy class A+
A+
A
B
C
D
E
F
G
H
Piano primo
Piano primo
Piano secondo
Piano secondo
Piano iterrato
Piano iterrato
Piano terra
Piano terra

Agenzia Immobili Cappelli Forlimpopoli

I commerciali risponderanno dalle 9 alle 19:30

Contattami

    Annunci simili

    Forlimpopoli – San Leonardo appartamen...

    € 135.000
    A Forlimpopoli, nella tranquilla frazione di San Leonardo e a breve distanza da Forlì, pro ...
    2 58 m2dettagli

    Nuovo appartamento a Forlì con giardino priv...

    € 315.000
    In posizione verde e riservata alle porte di Forlì, a breve distanza dal Parco Don Tommaso ...
    2 2 134 m2dettagli

    Appartamento Forlì nuova costruzione con gia...

    € 315.000
    A Forlì, con consegna prevista per l’autunno 2026, in contesto di campagna tranquillo e ri ...
    2 2 134 m2dettagli

    Appartamento Forlì nuova costruzione con ing...

    € 335.000
    A Forlì, con consegna prevista per l’autunno 2026, in contesto di campagna tranquillo e ri ...
    2 2 133 m2dettagli

    Compara Immobili

    Agenzia Immobili Cappelli Forlimpopoli