Panoramica
- Aggiunto il:
- Novembre 26, 2025
- 3 Stanze
- 2 Camere da letto
- 2 Bagni
- 122 m2
Descrizione
Forlimpopoli, in zona comoda e strategica per la vicinanza ai principali servizi del paese, proponiamo in vendita appartamento con ingresso indipendente di nuova costruzione.
La posizione è particolarmente apprezzata perché situata in una zona molto bella e tranquilla, frequentata da persone che corrono e passeggiano, grazie alla qualità del contesto e alla presenza di una strada scenografica che mostra il Colle di Bertinoro e attraversa la campagna, pur essendo a circa 1 km dalla piazza di Forlimpopoli.
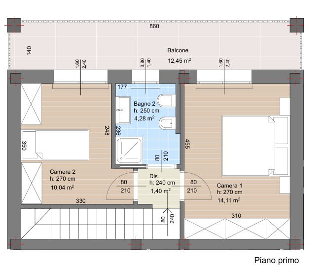
L’appartamento si sviluppa su due livelli, in elegante e moderna palazzina, studiata e realizzata con gusto, di sole quattro unità abitative. Al piano terra troviamo l’ingresso indipendente dalla corte privata con ampio giardino. Entrando troviamo un’accogliente e luminosa zona living, collegata direttamente al garage e alla cantina privati, il bagno e la scala di accesso al piano superiore, dove è presente la zona notte con due camere da letto servite da ampio balcone e il secondo bagno.
L’intervento è creato sulla base di quelle che sono le ultime disposizioni in materia di risparmio energetico, andando a garantire la Classe A di ultima generazione e l’addio alla bolletta del gas.
• Riscaldamento a pavimento
• 2 kW di impianto fotovoltaico
• Infissi in PVC
• Tapparelle in alluminio coibentato
• Installazione VMC (Ventilazione meccanica controllata)
• Predisposizione aria condizionata
• Predisposizione impianto antifurto
• Punto acqua interrato per irrigazione giardino










