Panoramica
- Aggiunto il:
- Novembre 26, 2025
- 3 Stanze
- 2 Camere da letto
- 2 Bagni
- 122 m2
Descrizione
A Forlimpopoli, in una delle zone più comode e strategiche della città grazie alla vicinanza ai principali servizi, proponiamo in vendita un appartamento di nuova costruzione con ingresso indipendente.
L’area è particolarmente ricercata per la sua tranquillità e per essere molto frequentata da chi ama correre o passeggiare. La via di accesso è infatti scenografica, con una splendida vista sul Colle di Bertinoro e un tracciato che attraversa la campagna pur trovandosi a circa 1 km dalla piazza di Forlimpopoli.
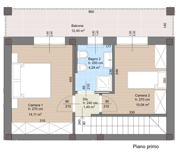
L’immobile si sviluppa su due livelli all’interno di una palazzina moderna ed elegante composta da sole quattro unità abitative. Al piano terra si accede dalla corte privata con ampio giardino, che introduce a una luminosa zona living collegata internamente al garage e alla cantina. Al piano sono presenti anche un bagno e la scala che conduce al livello superiore.
La zona notte, situata al primo piano, comprende due camere da letto entrambe affacciate su un balcone spazioso, oltre al secondo bagno.
La costruzione è progettata secondo le più recenti normative sul risparmio energetico, con l’obiettivo di raggiungere la Classe A di ultima generazione, garantendo così consumi minimi e l’eliminazione della bolletta del gas.
Dotazioni e predisposizioni comprese:
• Riscaldamento a pavimento
• 2 kW di impianto fotovoltaico
• Infissi in PVC
• Tapparelle in alluminio coibentato
• Sistema VMC (Ventilazione meccanica controllata)
• Predisposizione aria condizionata
• Predisposizione impianto antifurto
• Pozzetto per irrigazione del giardino










