Panoramica
- Aggiunto il:
- Febbraio 4, 2026
- 6 Stanze
- 4 Camere da letto
- 3 Bagni
Descrizione
A Forlimpopoli, in una delle zone residenziali più apprezzate per tranquillità, riservatezza e comodità a tutti i servizi del centro cittadino, proponiamo in vendita una casa bifamiliare indipendente libera su quattro lati, circondata da ampia corte privata con spazi esterni vivibili e massima privacy. La posizione in strada chiusa garantisce silenzio e sicurezza, rendendo questa soluzione ideale per famiglie che desiderano comfort, autonomia e qualità della vita senza rinunciare alla vicinanza a negozi, scuole e principali collegamenti.
L’immobile si sviluppa su due livelli ed è composto da due appartamenti completamente indipendenti, perfetti per una soluzione genitori e figli, per due nuclei familiari o per chi cerca una bifamiliare a Forlimpopoli con possibilità di unire abitazione e investimento.
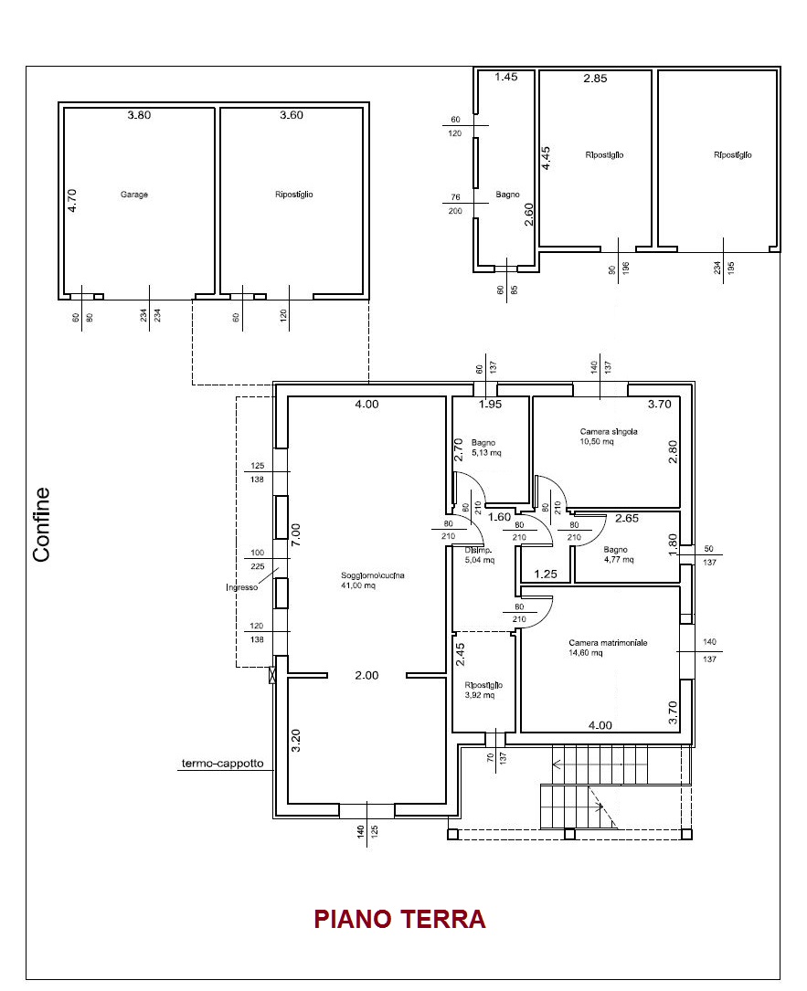
L’appartamento al piano terra, con accesso diretto dalla corte esclusiva, accoglie in un ampio e luminoso open space che valorizza gli spazi e la vivibilità quotidiana. Un disimpegno conduce a due camere da letto matrimoniali, due bagni finestrati e a un pratico ripostiglio, offrendo ambienti funzionali e ben distribuiti, ideali per una famiglia che desidera comodità su un unico livello.
Attraverso una scala esterna privata si accede al piano primo, dove un ampio loggiato introduce al secondo appartamento. Qui troviamo un ingresso che conduce a uno spazioso open space con accesso al balcone, disimpegno, due camere da letto e due bagni finestrati, ambienti luminosi e ben organizzati che garantiscono totale indipendenza e comfort abitativo.
Al piano terra sono inoltre presenti numerosi ambienti di servizio che arricchiscono ulteriormente il valore dell’immobile, tra cui un comodo garage, un bagno ad uso lavanderia e tre ampi ripostigli ideali come deposito, cantina o spazi multifunzionali. La proprietà è circondata su tutti i lati da una corte esclusiva, in parte pavimentata e in parte a giardino, perfetta per momenti di relax all’aperto, per chi ama il verde o per famiglie con bambini e animali domestici.
La casa bifamiliare è stata oggetto di un’importante ristrutturazione che ha interessato le parti strutturali e gli impianti, offrendo una base moderna e sicura. Restano da ultimare le pavimentazioni, le porte interne e i rivestimenti dei bagni, consentendo così di personalizzare gli ambienti secondo il proprio stile e le proprie esigenze, trasformando l’immobile in una soluzione su misura.
Questa proposta rappresenta un’opportunità rara per chi cerca una casa bifamiliare a Forlimpopoli con giardino privato, indipendenza totale, ampi spazi interni ed esterni e una posizione residenziale tranquilla ma a pochi minuti dal centro e da tutti i servizi della cittadina artusiana. Una soluzione ideale sia come prima casa sia per chi desidera vivere vicino ai propri familiari mantenendo la massima autonomia.
Per restare aggiornato sulle migliori opportunità immobiliari a Forlimpopoli e scoprire in anteprima esclusiva le nuove proposte prima della pubblicazione sui principali portali, segui @immobili_cappelli_forlimpopoli su Instagram e assicurati un reale vantaggio nella scelta della tua prossima casa.

























