Panoramica
- Aggiunto il:
- Novembre 26, 2025
- 3 Stanze
- 2 Camere da letto
- 2 Bagni
- 129 m2
Descrizione
A Forlimpopoli, in una delle zone più comode e strategiche della città grazie alla vicinanza ai principali servizi, proponiamo in vendita un appartamento di nuova costruzione.
L’area è particolarmente ricercata per la sua tranquillità e per essere molto frequentata da chi ama correre o passeggiare. La via di accesso è infatti scenografica, con una splendida vista sul Colle di Bertinoro e un tracciato che attraversa la campagna pur trovandosi a circa 1 km dalla piazza di Forlimpopoli.
Un contesto ideale per chi cerca qualità della vita senza rinunciare alla comodità del centro.
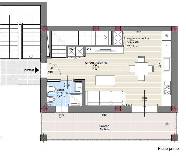
L’appartamento si sviluppa su due livelli, in elegante e moderna palazzina di sole quattro unità abitative, progettata e realizzata con gusto.
Accedendo dall’androne comune con solo un’altra unità, si sale al piano primo dove si trova l’ingresso dell’appartamento con una luminosa zona living, servita da bagno e da ampio balcone. Tramite comoda scala interna si sale al piano superiore, dedicato alla zona notte, con due camere da letto, entrambe collegate a un balcone, il secondo bagno e una grande terrazza abitabile di circa 50 mq, perfetta per vivere all’aperto e godere di uno spazio esterno raro in zona.
La costruzione è realizzata secondo le più recenti disposizioni in materia di risparmio energetico, garantendo la Classe A di ultima generazione e l’eliminazione della bolletta del gas.
Dotazioni e caratteristiche:
• Riscaldamento a pavimento
• 2 kW di impianto fotovoltaico
• Infissi in PVC
• Tapparelle in alluminio coibentato
• Installazione VMC (Ventilazione meccanica controllata)
• Predisposizione aria condizionata
• Predisposizione impianto antifurto
• Pozzetto per irrigazione giardino










