Panoramica
- Aggiunto il:
- Novembre 26, 2025
- 3 Stanze
- 2 Camere da letto
- 2 Bagni
- 129 m2
Descrizione
Forlimpopoli, in zona comoda e strategica per la vicinanza ai principali servizi del paese, proponiamo in vendita appartamento di nuova costruzione.
L’area è particolarmente apprezzata perché tranquilla, molto frequentata da persone che corrono e passeggiano, e caratterizzata da una strada scenografica che mostra il Colle di Bertinoro e attraversa la campagna, pur trovandosi a circa 1 km dalla piazza di Forlimpopoli. Un contesto ideale per chi cerca qualità della vita senza rinunciare alla comodità del centro.
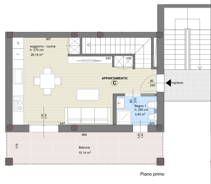
L’appartamento si sviluppa su due livelli, all’interno di una elegante e moderna palazzina di sole quattro unità abitative, studiata e realizzata con gusto.
Accedendo dall’androne comune condiviso solo con un’altra unità, si sale al piano primo dove si trova l’ingresso dell’abitazione: qui si apre una luminosa zona living, servita da un bagno e da un ampio balcone. La comoda scala interna conduce al piano superiore, dedicato alla zona notte, con due camere da letto entrambe collegate a un balcone, il secondo bagno e una grande terrazza abitabile di circa 50 mq, perfetta per vivere all’aperto e godere di uno spazio esterno raro in zona.
La costruzione è realizzata secondo le più recenti disposizioni in materia di risparmio energetico, garantendo la Classe A di ultima generazione e l’eliminazione della bolletta del gas.
Dotazioni e caratteristiche:
• Riscaldamento a pavimento
• 2 kW di impianto fotovoltaico
• Infissi in PVC
• Tapparelle in alluminio coibentato
• Installazione VMC (Ventilazione meccanica controllata)
• Predisposizione aria condizionata
• Predisposizione impianto antifurto
• Pozzetto per irrigazione giardino










